Logo Schreinerei Zimmermann
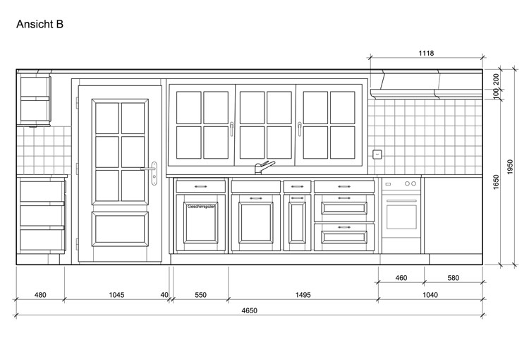
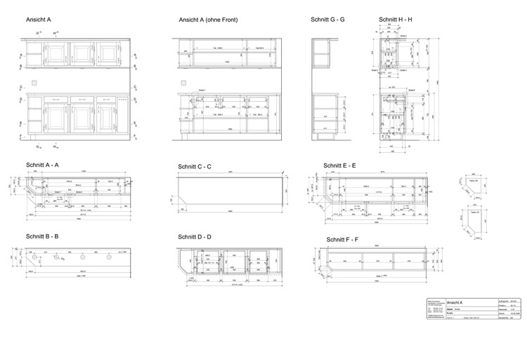
Massgeschreinert: Grundlage einer gelungenen Arbeit und zufriedener Kunden ist eine durchdachte und seriöse Detailplanung!
Planungs- und Betriebsgrundsätze: Zusammen mit der Kundschaft, werden im Voraus persönliche Bedürfnisse und Ideen wie Funktion, Konstruktion, Proportion und Materialien besprochen. Detaillösungen, Produktion und Endmontage werden von uns bis zum letzten Handgriff  präzise, fach-männisch und sauber ausgeführt.

Zurück zur Hauptseite »